廠辦廠房整棟透天面寬
汐止買屋 /
汐止買房
-
福德一路面寬挑高整棟透天廠房 汐止買賣房屋
預約看屋
更多優質好屋: 20
※ 房屋照片僅反應使用現況,用途以實際合法文件為準。若法定用途與現況不同,可能違法並有相關風險,請購屋或承租前詳加確認,以保障權益。
- 總價:5980 萬
- 參考單價:52.24 萬/坪
- 地址:
新北市
汐止區
福德一路
地圖
🏷️ 查看區域實價登錄
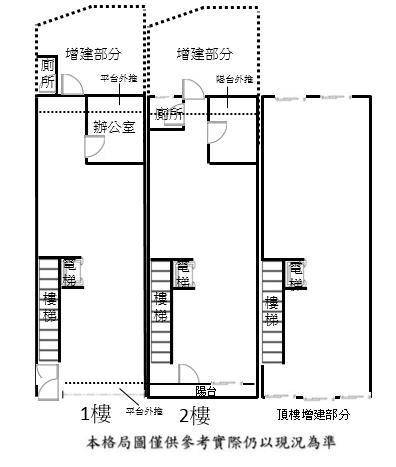
- 格局: 2房(室) 2衛
- 總坪數:114.466 坪 (不含車位面積)
- 主建物面積:101.35 坪
- 附屬建物面積:13.116 坪
- 土地面積:71.49 坪
- 樓別/樓高: 整棟 / 2樓
- 屋齡:39 年
- 法定用途:住工用
- 形式/類型:廠房/ 廠辦
- 車位:其它
- 車位描述:門口方便停多台車
- 電梯:有
詳細資訊
特色說明
圖片介紹

























地圖 (點擊顯示地圖)
我家AI分析|物件診斷一次看
本內容由AI輔助分析整理,僅供參考,實際情況仍建議依此房仲說明與個人需求判斷。
1. SWOT 分析
| 面向 | 內容 |
|---|---|
| 優勢 (Strengths) | 1. 空間寬敞實用:整棟面積達 114 坪,一樓挑高設計適合貨物裝卸,並配有貨梯與增建空間,住工兩用彈性高。 2. 交通便利:鄰近國道、省道及高速公路,且有社巴路線經過,物流運輸或日常通勤都相當便捷。 3. 生活機能完善:周邊有國小學區資源(金龍、北峰)與傳統市場(中興、民族),適合家庭居住需求。 |
| 劣勢 (Weaknesses) | 1. 屋齡較舊:屋齡已达 39 年,可能面臨貸款成數限制或未來需要額外裝修預算。 2. 產權性質特殊:用途為廠辦且包含增建物,需確認合法執照與土地分區,非純住宅戶。 3. 隱私與環境:位於道路旁(福德一路),車流可能較多,噪音干擾風險高於一般社區。 |
| 機會 (Opportunities) | 1. 投資獲利空間:若是用於小型辦公室或工作室出租,因坪數大且價格相對合理,潛在租賃收益佳。 2. 區域發展潛力:汐止為北台灣物流與交通樞紐,長期看有保值潛力。 3. 客製化改造:高挑高空間適合隔層設計或整修後作為混合居住空間使用。 |
| 威脅 (Threats) | 1. 法規風險:資料提及有三樓加蓋,未來可能面臨違建查報或拆除之風險。 2. 流動性較低:廠辦性質的房產通常買家族群比一般住宅少,轉手週期可能較長。 3. 銀行貸款限制:高屋齡建築搭配非標準住戶用途,銀行核貸審核可能較為嚴苛。 |
2. 物件評論
這件物件總價約 5980 萬,單價約 52 萬/坪,在汐止地區屬於價格實惠的整棟透天產權。若您有自營工作室或倉儲需求,且能接受老屋維修與法規風險,此處是具備高性價比的選擇。然而,由於屋齡已達 39 年且有增建情況,建議務必先確認建物合法性及銀行貸撥情形再行議價。若僅作為純住宅使用,可能面臨社區安靜度不足的問題,因此對於「住工」兩用且重視交通與空間利用率的家戶而言,值得一看;若是追求年輕化或高增值性的住宅投資,則需審慎評估。
問與答
汐止買賣房屋
汐止買賣房屋
游惠君&闕俊聰(仲介,收取服務費)
暱稱:游惠君&闕俊聰
專業品質:
服務態度:
房仲電話:0939-998136
訂閱:5 (加入)永慶不動產 汐止湖前康寧 加盟店
經紀業名稱: 兆旭不動產仲介經紀有限公司
證號: (111)登字第416670號
強強聯手,就愛服務~
專業諮詢,服務到家
全台服務稽核第一名服務人員
◎國考合格地政士、不動產經紀人
闕俊聰0933-883-663
◎游惠君 0939-998-136
新人獎、年度開發王
連續多月百萬經紀營業員獎
汐止買賣房屋 找永慶阿君
不動產經紀人况秉澤(93)北縣經證字第000894號
好宅急售 7-11對面雙層別墅+雙車位 汐止買賣房屋
新北市 汐止區
伯爵夫人邊間下疊花園大庭院 汐止買賣房屋
新北市 汐止區
樟樹最便利學校旁明亮美寓 汐止買賣房屋
新北市 汐止區
汐止大同路正馬路邊黃金店面 汐止買賣房屋
新北市 汐止區
伯爵一代獨棟花園採光別墅+車位 汐止買賣房屋
新北市 汐止區
福德星鑽廠辦一樓+夾層超大空間 汐止買賣房屋
新北市 汐止區
東湖國中康樂商圈寬敞美寓 汐止買賣房屋
台北市 內湖區
東方伯爵透天庭院別墅五房+車庫 汐止買賣房屋
新北市 汐止區
汐科水源路高報酬套房+頂嘉 汐止買賣房屋
新北市 汐止區
國家新城邊間景觀亮麗宅 汐止買賣房屋
基隆市 安樂區

預約看屋
發問
收藏房屋土地
分享

























我家粉絲團